IMOT EXCLUSIVE Ви предлага Луксозна новопостроена къща за продажба в с. Марково, Пловдив
Представяме ви един истински шедьовър на съвременната архитектура – новоизградена луксозна къща в с. Марково, област Пловдив. Построена през 2024 година, тази къща предлага съчетание от модерни удобства и елегантен дизайн.Тази изискана къща предлага просторна и функционална планировка, проектирана за комфорт и функционалност. Влизайки в имота, ще бъдете впечатлени от просторния хол, който е свързан с кухня и трапезария. Големите панорамни прозорци осигуряват изобилие от естествена светлина, придавайки усещане за простор и уют.
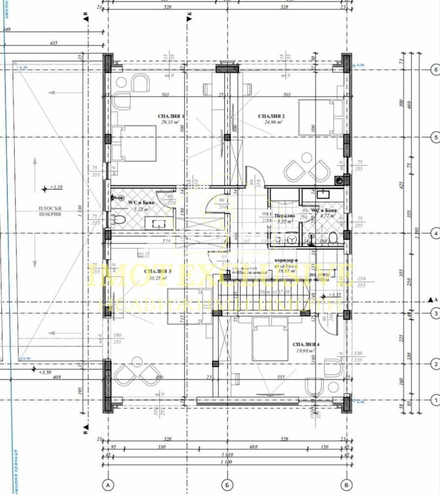
Четирите спални са внимателно проектирани, за да предоставят максимално удобство на своите обитатели. Двете бани с тоалетни едната самостоятелна към родителската спалня допълват удобствата на този луксозен дом.
Разположена в тих и спокоен район, къщата предлага идеалната комбинация от градски удобства и уединение на спокоен начин на живот.
Не пропускайте възможността да се насладите на комфорт и лукс в едно от най-престижните села в близост до Пловдив. Свържете се с нас за повече информация и организиране на оглед.
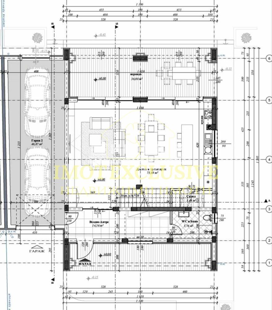
Парцел от 600кв.м. , с панорамна гледка към град Пловдив. Модерната и стилна архитектура, добрата локация и функционалното разпределение на жилищната площ. Къщата е с РЗП от 397кв.м. разпределени на две нива . Първият етаж функционален двоен гараж с топла връзка към широко входно антере, баня с тоалетна, склад, трапезария с кухненска част и слънчева дневна с площ от 70 кв.м. с излаз на покрита веранда с площ от 36 кв.м. с гледка към хълмовете на гр.Пловдив. На втория етаж четири самостоятелни и спални с площи от 20 до 33 кв.м. , като родителската стая е сплощ от 29 кв.м. разполага със собствена баня с тоалетна и гардеробна, втора баня с тоалетна за другите три спални .
Висококачествени материали и специално отношение към всеки един детайл, червена Австрийска Тухла, троен стъклопакет на шест камерна дограма, 10см. външна изолация, облицовка на фасадата, изградена и оформена външна планировка. Цената включва стандартно завършване с изградена ограда на имота, сондаж и издаване на Акт 16 изцяло завършени с камък. Паркирането е подсигурено с две паркоместа пред самата къща . Пусковия срок на тази къща е до 30.12.2024г. , катто е възможност за разсрочено изплащане в рамките на строителството.
Оферта 336
Агенция IMOT EXCLUSIVE Ви осигурява обслужване до финализиране на сделката.
При необходимост от кредитиране, ще Ви съдействаме за целия процес по избиране на банка, изготвяне на документи и отпускане на кредита.
Работим с всички банки и ще ви осигурим най-изгодните условия в най-кратък срок.
Този имот се предлага само на частни лица
За повече информация: Гергана Димитрова
Поискайте допълнителна информация
| Цена на кв.м. | 1.500€ | 2.933,75лв |
|---|---|
| Област | Марково (Родопи) |
| Спални | 4 |
| Гараж / Паркомясто | Да |
| Година на строеж | 2024 |
| Отоплителна Система | Автономно отопление |
| Тоалетна | 1 |
| Статус | Ново строителство |
| Допълнително | Луксозен |
Свържете се с нас или резервирайте оглед чрез този формуляр. След като получим вашата заявка, ние ще се свържем с вас.